[Shower][FL38][D][HW][R]

https://phico.odoo.com/web/image/product.template/1975/image_1920?unique=9d99e62

1,030.59 1030.59112 USD 1,030.59

21.65

Not Available For Sale

  • Location ID
  • |Provide|
  • [Dw]
  • [Dw] is Required.
    [Dw] value must be between 22.0 and 32.0.
  • [H]
  • [H] is Required.
    [H] value must be between 50.0 and 135.0.
  • |Hardware Finish|
  • |Layout|
  • [Glass Thickness]
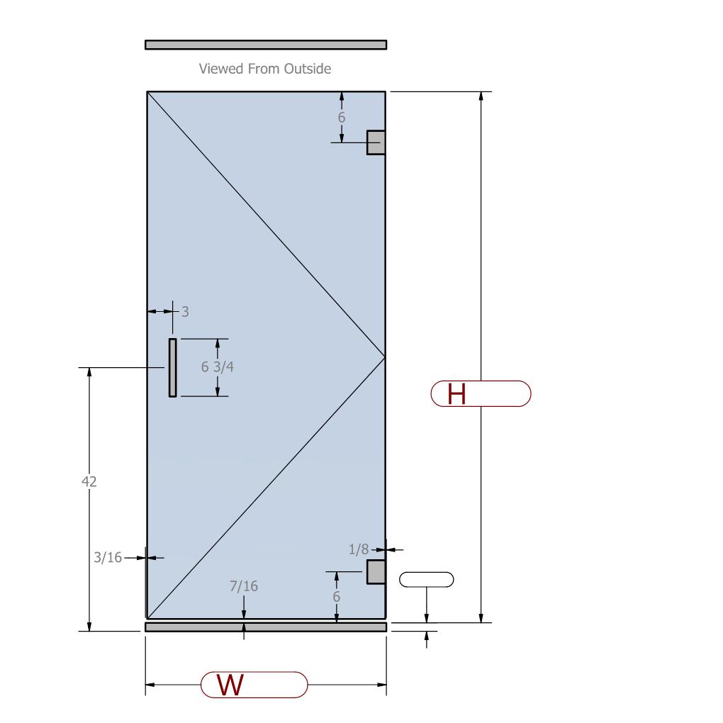
  • [W]
  • [ClC_AREA]
  • [ClC_DrWT]
  • [ClC_DrWT] value must be between 0.0 and 110.0.
  • [ClC_EwF]
  • [Clc_MxWT]
  • [ClC_CrEW]
  • [ClC_LBRH]

This combination does not exist.

[Dw]: Inches
[H]: Inches
|Layout|: G[X]
[Glass Thickness]: 3/8
[W]: Inches
[ClC_AREA]: =
[ClC_DrWT]: =
[ClC_EwF]: =
[Clc_MxWT]: =
[ClC_CrEW]: =
[ClC_LBRH]: =

Terms and Conditions
Shipping: Typically 2-3 Business Days
Installation: Typically 5-10 Business Days